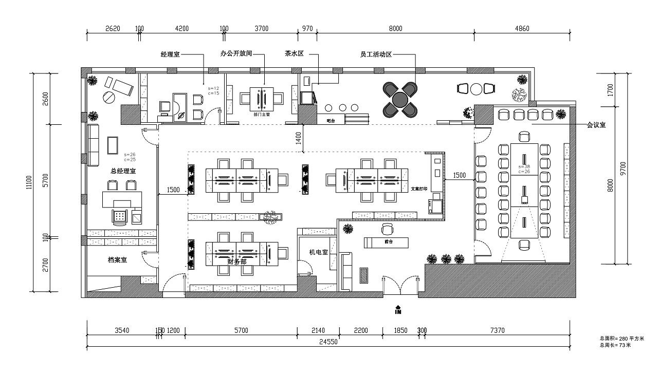
本次項目項目主要是打造辦公空間。設計師采用平衡工作模式如專注、合作、學習、社交模式來解決部門及員工需求,這四種工作模式在不同組織中表現為不同的組合方式,對于員工績效而言都非常重要。可做到根據員工的需求靈動化辦公提高員工身心健康。
項目規劃設計 THE PROJECT DESIGN

設計師觀點
本次項目項目主要是打造定制式辦公空間。設計師根據客戶的需求,結合辦公的整體美感以及功能實用性,以最專業的設計手法贏得了客戶的100%滿意度。
客戶都在看 CUSTOMERS ARE WATCHING